O Processo
O Planning and Development Act 2000 (as amended) é a legislação principal que rege a elaboração dos documentos para aprovação (“Projeto Legal”), determina como o process of applying for e obtaining planning permission funciona, e explica quando planning é necessário ou exempted.
A Schedule 2 do Planning and Development Regulations 2001, descreve em detalhes quais são os exempted developments por classes. O exemplo mais comum de isenção é uma house extension que seja menor do que 40m2 . Porém, essa isenção não exclui e nem elimina a emissão do ‘Opinion on Compliance” , um certificado onde o arquiteto se compromete e confirma que a construção está de acordo com o Building Regulations.
O processo de Planning, em comparação com o Brasil, é um pouco mais burocrático e mais demorado para se obter uma aprovação. O Dublin City Council tem uma tabela bem explicativa do processo:

Em resumo, você publica um anuncio no jornal e instala uma placa no local do projeto. Num período de duas semanas após a publicação do anuncio você deve dar entrada na prefeitura com a documentação necessária para o Planning. A prefeitura vai tomar uma decisão em 8 semanas, quando eles emitem uma nota declarando a intenção de decisão, caso não haja alguma objeção o Final Grant é emitido em 4 semanas e seu projeto está pronto para começar a se tornar realidade. A validade de um Planning Permission é de 5 anos.
Se no decorrer das 8 semanas existir alguma objeção do publico e/ou os planners resolverem que precisam de mais mais informações para dar continuidade ao processo, uma nota de Further Information é emitida te dando um período de 6 meses para responder. Caso a intenção de decisão seja negada, você tem 4 semanas para recorrer junto ao An Bord Pleanala, o que pode acrescentar 18 semanas para obter uma decisão final.
Documentação
Como previsto por lei, uma lista de documentos é exigida para dar entrada no seu Planning:

A Guide to Making a Planning Application, page 6
Cada Council (prefeitura) tem sua própria lista e Application form que você pode baixar direto do site e uma checklist para te ajudar a ter certeza que todos os documentos estão em ordem.
Uma maneira de obter melhores resultados em um Planning Application é agendar um Pre-Planning Meeting. Podendo ser apenas uma ligação ou uma reunião com um dos planners que vai de auxiliar na tomada de decisões e responder qualquer dúvida referente ao projeto. Toda decisão e/ou comentário feito durante essa reunião vai fazer parte da sua documentação final quando for dar entrada na sua Application.
Quando sua documentação estiver pronta, ela vai se parecer mais ou menos assim:

- Cover Letter (1)
- Planning Form (3 to 12)
- Water Drainage Map (13)
- Newspaper Notice (14)
- Site notice (15)
- Os Map (16)
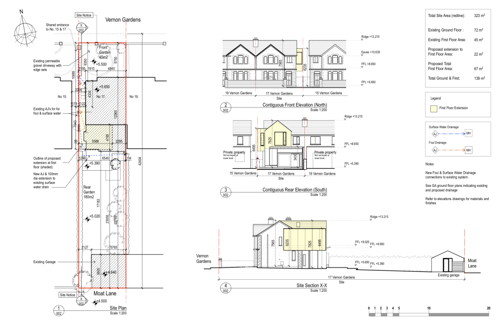
- Site plan + Contiguous Elevations (17)
- Plans, Sections & Elevations (18 to 20)
Em geral, seus desenhos vão mostrar a localização do projeto e o contexto. As plantas, cortes e fachadas devem mostrar como sua proposta se relaciona com o entorno, a altura da edificação, o tamanho da área proposta e quais os materiais a serem usados, geralmente se usa nomes genéricos, pois se você especificar algo você terá que certificar que determinado produto foi usado.




Bom, espero que tenha ajudado a esclarecer algumas dúvidas sobre Planning Permission. No link abaixo, vocês vão encontrar alguns leaflets com mais informações sobre o que foi abordado nesse post.
Qualquer dúvida deixe seu comentário abaixo ou mande um email para architectnomade@gmail.com
Boa sorte no seus projetos!

Leave a comment